Thành Công Tower - Mua bán căn hộ chung cư T5/2026

Số 57 đường Láng Hạ, phường Giảng Võ, quận Ba Đình, Hà Nội
Đã bàn giao
5527 m²
70,3 triệu /m²

Chi tiết dự án

  • Tên dự án:
    Thành Công Tower
  • Trạng thái dự án:
    Đã bàn giao
  • Tổng diện tích:
    5527 m²
  • Mật độ xây dựng:
    40
  • Sở hữu:
    Vĩnh viễn
  • Số tòa:
    1
  • Số tầng:
    25
  • Số căn:
    160
  • Khởi công:
    2003
  • Hoàn thành:
    2006
  • Mức giá:
    70,3 triệu /m²

Giới thiệu Thành Công Tower

Thành Công Tower (hay EuroWindow Building) là tổ hợp căn hộ cao cấp và văn phòng cho thuê, tọa lạc tại 57 Láng Hạ, quận Ba Đình. Dự án được đầu tư và phát triển bởi Công ty Cổ phần Đầu tư Xây dựng Thành Công, đơn vị giàu kinh nghiệm trong lĩnh vực bất động sản và thương mại. Khu căn hộ được bố trí từ tầng 6 đến tầng 25, gồm hơn 160 căn hộ cao cấp với diện tích linh hoạt. Tòa nhà nổi bật với kiến trúc hiện đại, mặt ngoài ốp kính lớn EuroWindow sang trọng, vừa tăng tính thẩm mỹ vừa cách âm, cách nhiệt hiệu quả.

Dự án chung cư Thành Công Tower (hay EuroWindow Building)

Điểm mạnh của dự án là khu nội khu được trang bị đầy đủ tiện ích cao cấp, trong khi ngoại khu liền kề trường học, bệnh viện, công viên. Đây là sự lựa chọn lý tưởng cho gia đình trẻ, chuyên gia hoặc nhà đầu tư dài hạn, bởi vừa mang lại trải nghiệm sống đẳng cấp, vừa có tiềm năng tăng giá.

Thông tin chủ đầu tư

  • Chủ đầu tư:
    Tập đoàn Thành Công
  • Đơn vị xây dựng:
    Công ty Cổ phần Đầu tư và Xây dựng Số 1 Hà Nội (HICC1)
  • Đơn vị thiết kế:
    LPC - Thanh Cong Group
  • Đơn vị quản lý:
    Công ty TNHH Quản lý và Dịch vụ Tài sản Thành Công (TC PSC)

Vị trí Thành Công Tower

Chung cư Thành Công Tower sở hữu vị trí vàng tại số 57 Láng Hạ, một trong những trục đường huyết mạch của Hà Nội, giúp cư dân dễ dàng kết nối tới hầu hết các khu vực quan trọng của thành phố. Từ đây, chỉ vài phút di chuyển là tới hồ Thành Công, công viên Indira Gandhi, rạp chiếu phim Quốc gia, trung tâm thương mại lớn: Lotte Center, Vincom Nguyễn Chí Thanh.

Dự án nằm tại số 57 Láng Hạ, một trong những trục đường huyết mạch của Hà Nội

Nhờ liền mạch với nhiều tuyến đường lớn như Giảng Võ, Kim Mã, Nguyễn Chí Thanh và Đê La Thành, cư dân không chỉ thuận lợi đi làm, đi học mà còn dễ dàng tiếp cận các trung tâm văn hóa, giải trí và hành chính của Thủ đô, tạo nên lợi thế nổi bật so với nhiều dự án chung cư khác.

Bản đồ Thành Công Tower

Tiện ích Thành Công Tower

Tiện ích nội khu

Khu dịch vụ thương mại tại Thành Công Tower được bố trí ngay tại khối đế, gồm: siêu thị mini, quán cafe, ngân hàng BIDV, nhà hàng, cửa hàng tiện ích... giúp cư dân mua sắm nhanh chóng, đây cũng là điểm gặp gỡ, kết nối cộng đồng cư dân.

Khu dịch vụ thương mại tại Thành Công Tower

Bãi đỗ xe ngầm và trên cao rộng rãi, đáp ứng nhu cầu cho toàn bộ cư dân. Hệ thống an ninh 3 lớp (camera giám sát 24/7, thẻ từ ra vào, đội bảo vệ chuyên nghiệp) đảm bảo môi trường sống an toàn.

Bãi đỗ xe rộng rãi, được bố trí sắp xếp khu vực đỗ xe máy - ô tô riêng biệt

Khu thể thao - chăm sóc sức khỏe, gồm: phòng tập gym, khu tập yoga, và bể bơi trong nhà được thiết kế hiện đại, đáp ứng nhu cầu rèn luyện thể chất quanh năm. Bể bơi sử dụng công nghệ lọc nước tuần hoàn, diện tích hơn 200 m2, an toàn cho cả người lớn và trẻ nhỏ. Khu sinh hoạt cộng đồng rộng hơn 300 m2, phù hợp tổ chức sự kiện, hội họp hoặc sinh hoạt cư dân. Không gian xanh được bố trí xen kẽ, tạo sự thư giãn giữa nhịp sống sôi động.

Khu vui chơi trẻ em vui nhộn, với nhiều cây xanh trong lành

Tiện ích ngoại khu

Nhờ vị trí đắc địa, cư dân Thành Công Tower được hưởng trọn vẹn hạ tầng xung quanh. Giáo dục: gần Trường Tiểu học Thành Công B, THCS Giảng Võ, Đại học Ngoại Thương. Y tế: cách Bệnh viện Nhi Trung ương, Bệnh viện Phụ sản Hà Nội chưa tới 2 km. Mua sắm, giải trí: tiếp cận Vincom Nguyễn Chí Thanh, Lotte Center, Rạp Quốc gia chỉ trong 10 phút. Công viên, cộng đồng: sát hồ Thành Công, công viên Indira Gandhi, nơi lý tưởng để tập thể dục, đi dạo. Giao thông công cộng: nhiều tuyến xe buýt dừng ngay trước tòa nhà, thuận tiện di chuyển khắp nội thành.

vehicle-car.svgChỗ đậu xe
vehicle-car.svgCông viên
vehicle-car.svgThang máy
vehicle-car.svgSảnh lễ tân
vehicle-car.svgQuán ăn / quán cafe
vehicle-car.svgTrung tâm thương mại
vehicle-car.svgHồ bơi
vehicle-car.svgBảo vệ 24/7
vehicle-car.svgGym
vehicle-car.svgKhu thể thao ngoài trời
vehicle-car.svgKhu vui chơi trẻ em

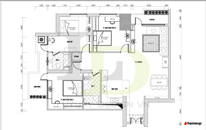
Mặt bằng Thành Công Tower

Dự án tòa nhà Thành Công Tower được xây dựng với 1 tòa tháp cao 25 tầng nổi và 2 tầng hầm, với khối đế thương mại dịch vụ và khối căn hộ riêng biệt, đảm bảo không gian sống yên tĩnh cho cư dân. Thiết kế kiến trúc hiện đại với mặt ngoài ốp kính EuroWindow sang trọng vừa tạo điểm nhấn thẩm mỹ vừa tối ưu khả năng cách âm/nhiệt, phù hợp với nhịp sống đô thị.

Tòa nhà Thành Công Tower cao 25 tầng nổi và 2 tầng hầm, khu căn hộ chung cư được bố trí từ tầng 6 trở lên

Khu căn hộ được bố trí từ tầng 6 đến tầng 25, gồm hơn 160 căn với diện tích linh hoạt, dao động từ 44 - 500 m2, với các loại diện tích phổ biến: 122 m2, 142 m2, 193 m2,... phù hợp cho gia đình trẻ, hộ đa thế hệ và cả chuyên gia làm việc tại trung tâm. Các căn hộ được thiết kế thông thoáng, đón ánh sáng và gió tự nhiên qua hệ thống cửa kính lớn, ban công rộng rãi.

Căn hộ có diện tích đa dạng, thiết kế tối ưu công năng

Nội thất bàn giao tại Thành Công Tower được lựa chọn từ những thương hiệu uy tín, bao gồm sàn gỗ cao cấp cho phòng ngủ, gạch men chống trơn cho khu bếp và vệ sinh, hệ thống điều hòa âm trần, trần thạch cao hoàn thiện, cùng tủ bếp gỗ công nghiệp chống ẩm. Phòng tắm trang bị thiết bị vệ sinh Inax/Toto hiện đại, đảm bảo tính thẩm mỹ và độ bền lâu dài.

Loại căn hộ Thành Công Tower

Video

Chưa có video cho bất động sản này.

Tính toán vay mua

70,000
/
Hàng tháng
  • Gốc & Lãi
  • Thuế tài sản
  • Bảo hiểm nhà