FLC Green Apartment - Mua bán căn hộ chung cư T5/2026

Số 18 đường Phạm Hùng, phường Xuân Phương, quận Nam Từ Liêm, Hà Nội
Đã bàn giao
3.611 m²
55 triệu /m²

Chi tiết dự án

  • Tên dự án:
    FLC Green Apartment
  • Trạng thái dự án:
    Đã bàn giao
  • Tổng diện tích:
    3.611 m²
  • Mật độ xây dựng:
    37,7
  • Sở hữu:
    Vĩnh viễn
  • Số tòa:
    1
  • Số tầng:
    30
  • Số căn:
    384
  • Khởi công:
    Quý IV/2016
  • Hoàn thành:
    Quý II/2019
  • Mức giá:
    55 triệu /m²

Giới thiệu FLC Green Apartment

Dự án FLC Green Apartment do Tập đoàn FLC làm chủ đầu tư, được thiết kế theo phong cách hiện đại, tinh tế với không gian sống tối ưu và nhiều tiện ích nội khu cao cấp. Các căn hộ tại đây có diện tích linh hoạt, từ 45 m2 đến 76,7 m2, phù hợp với nhu cầu đa dạng của cư dân, được trang bị nội thất cơ bản nhưng hiện đại, tạo cảm giác ấm cúng và tiện nghi. Vị trí tại đường Phạm Hùng, quận Nam Từ Liêm giúp cư dân dễ dàng kết nối với các trung tâm hành chính, thương mại và giáo dục. Dự án còn bố trí các tiện ích như bể bơi, khu sinh hoạt cộng đồng, sân vườn, và tầng dịch vụ thương mại, mang đến một không gian sống trọn vẹn.

Dự án chung cư FLC Green Apartment

Với kinh nghiệm dày dạn trong lĩnh vực bất động sản và thương mại, Tập đoàn FLC mang lại giá trị bền vững cho cư dân và nhà đầu tư. FLC Green Apartment là sự lựa chọn lý tưởng cho gia đình trẻ, chuyên gia, hoặc nhà đầu tư dài hạn đang tìm kiếm một khu dân cư năng động, văn minh, mang lại trải nghiệm sống chất lượng cao cho mọi cư dân.

Thông tin chủ đầu tư

  • Chủ đầu tư:
    Tập đoàn FLC
  • Đơn vị xây dựng:
    Công ty CP Xây dựng Delta và Công ty CP Xây dựng Faros
  • Đơn vị thiết kế:
    Nhà thiết kế Anh Quốc
  • Đơn vị quản lý:
    CBRE Việt Nam

Vị trí FLC Green Apartment

Chung cư FLC Green Apartment tọa lạc tại số 18 Phạm Hùng - một vị trí “vàng” phía Tây Hà Nội, nổi bật với mạng lưới giao thông thuận tiện và liền mạch với nhiều tuyến đường lớn: Phạm Hùng, Mễ Trì, Đại lộ Thăng Long... Từ đây, cư dân dễ dàng kết nối với các trung tâm hành chính, thương mại và giải trí của thủ đô.

Tọa lạc tại số 18 Phạm Hùng - một vị trí “vàng” phía Tây Hà Nội, nổi bật với mạng lưới giao thông thuận tiện

Ngoài ra, vị trí này còn giúp cư dân thuận tiện tiếp cận các cơ sở giáo dục và y tế hàng đầu: chỉ 400 m đến Học viện Báo chí và Tuyên truyền, Bệnh viện 198, bến xe Mỹ Đình... đảm bảo thuận lợi di chuyển cho cư dân. Ngoài ra, chỉ 3 km đến Khu liên hợp thể thao quốc gia Mỹ Đình, mang lại nhiều lựa chọn giải trí và thể thao.

Bản đồ FLC Green Apartment

Tiện ích FLC Green Apartment

Tiện ích nội khu

Chung cư FLC Green Apartment mang đến hệ thống bể bơi hiện đại trên tầng cao, diện tích rộng rãi đáp ứng nhu cầu thư giãn và rèn luyện sức khỏe cho cư dân mọi lứa tuổi. Hệ thống thang máy Thyssenkrupp - Mitsubishi hoạt động êm ái, an toàn tuyệt đối theo tiêu chuẩn châu Âu, giúp di chuyển nhanh chóng giữa các tầng.

Bể bơi thiết kế trên tầng cao, có view nhìn thoáng ra trung tâm thành phố
Hệ thống thang máy tốc độ cao, giúp cư dân di chuyển nhanh chóng

Bãi đỗ xe 3 tầng hầm liên thông nhau, đảm bảo đủ chỗ cho cả cư dân và khách, thuận tiện và an toàn. Hệ thống điện, nước, và báo cháy được trang bị đồng bộ, hiện đại, mang đến sự yên tâm tối đa trong quá trình sinh sống.

Hạ tầng dự án đồng bộ, đảm bảo ninh khu vực, mang đến không gian đáng sống

Khuôn viên cây xanh, sân chơi cho trẻ em và khu vực nghỉ dưỡng cho người già, giúp cư dân tận hưởng những phút giây thư giãn giữa thiên nhiên, tạo nên môi trường sống gần gũi và thoáng đãng.

Không gian sinh hoạt chung rộng rãi, bố trí thoáng đãng phù hợp với các buổi gặp mặt - trò chuyện bạn bè
Cộng đồng cư dân sinh sống thư giãn và thoải mái trong dự án FLC Green Apartment

Trung tâm thương mại - dịch vụ với nhà trẻ, siêu thị mini, phòng khám, ngân hàng và spa, đáp ứng đầy đủ nhu cầu sinh hoạt hàng ngày của cư dân ngay trong khuôn viên, không cần đi xa.

Trung tâm thương mại tích hợp nhà trẻ, siêu thị, ngân hàng, phòng khám... đáp ứng nhu cầu sinh hoạt hằng ngày

Tiện ích ngoại khu

Về giáo dục, cư dân chỉ mất 400 m đến Học viện Báo chí và Tuyên truyền, 1 km đến Đại học Quốc gia Hà Nội và Đại học Thương Mại, cùng các trường cấp 1, 2, 3 chất lượng cao: Lê Quý Đôn và Đoàn Thị Điểm.... Về y tế, cách Bệnh viện 198 chỉ 1,2 km, đảm bảo chăm sóc sức khỏe nhanh chóng. Trong mua sắm và giải trí, dự án gần các siêu thị Mediamart, BigC, Pico, Indochina Plaza, KeangNam... Về giao thông công cộng, dự án chỉ cách bến xe Mỹ Đình 300 mét, dễ dàng di chuyển đến các quận trung tâm và các khu vực lân cận, tạo thuận lợi tối đa cho cuộc sống hàng ngày.

Tiện ích xung quanh chung cư FLC Green Apartment

 

vehicle-car.svgChỗ đậu xe
vehicle-car.svgCông viên
vehicle-car.svgThang máy
vehicle-car.svgSảnh lễ tân
vehicle-car.svgQuán ăn / quán cafe
vehicle-car.svgTrung tâm thương mại
vehicle-car.svgHồ bơi
vehicle-car.svgBảo vệ 24/7
vehicle-car.svgGym
vehicle-car.svgKhu thể thao ngoài trời
vehicle-car.svgKhu vui chơi trẻ em

Mặt bằng FLC Green Apartment

Dự án tòa nhà FLC Green Apartment gồm 1 tòa tháp cao 30 tầng, được thiết kế bởi các kiến trúc sư đến từ Anh Quốc. Mỗi tầng bố trí 10 căn hộ, với 6 thang máy và 2 thang bộ, đảm bảo tiện lợi và nhanh chóng cho cư dân. Tòa nhà chú trọng thiết kế xanh, gần gũi với thiên nhiên, tạo không gian sống tiện nghi giữa trung tâm đô thị sầm uất.

Mặt bằng tổng thể dự án chung cư FLC Green Apartment
Dự án được xây dựng với 1 tòa tháp cao 30 tầng hiện đại

Tổng dự án có 348 căn hộ đa dạng, có từ 2-3 phòng ngủ, phòng khách rộng rãi và nhà vệ sinh khép kín, luôn tràn ngập ánh sáng tự nhiên và không khí thoáng đãng. Thiết kế căn hộ được tính toán kỹ lưỡng về phong thủy, mang đến sự hài hòa, tiện nghi và phù hợp với nhiều đối tượng cư dân. 

Không gian sống hiện đại, trẻ trung, hướng đến sự thoải mái và tiện ích tối đa cho gia đình.

Tất cả căn hộ được bàn giao với nội thất cơ bản nhưng hiện đại, bao gồm các thiết bị điện, nước, hệ thống báo cháy và an ninh tiêu chuẩn cao cấp. Cư dân có thể dễ dàng hoàn thiện theo phong cách riêng, kết hợp giữa thẩm mỹ và công năng.

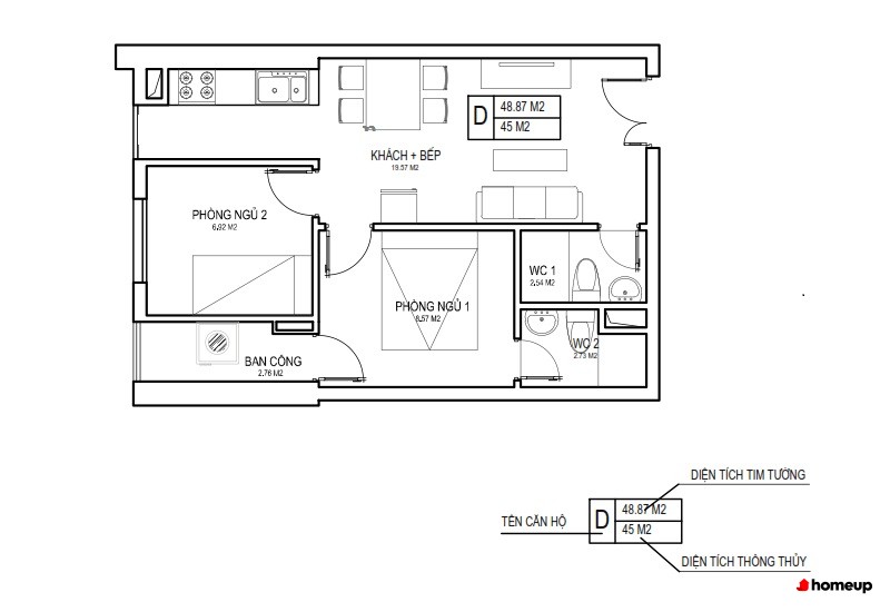
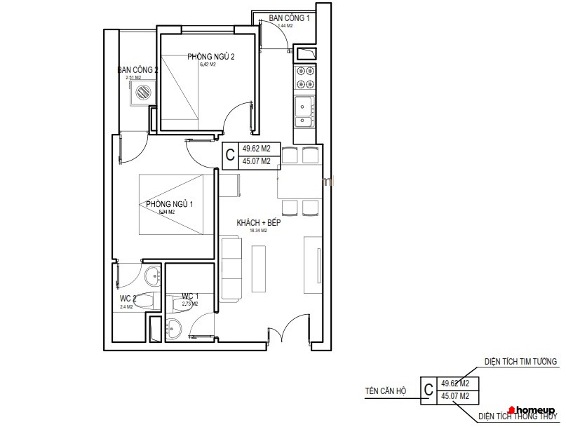
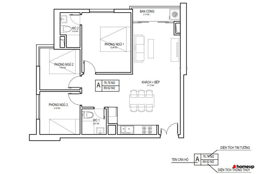
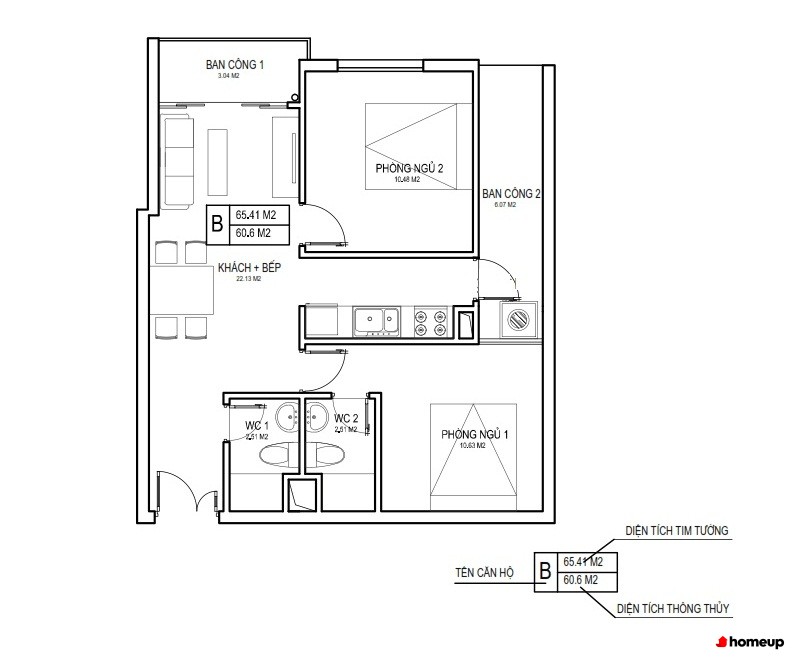
Loại căn hộ FLC Green Apartment

Video

Chưa có video cho bất động sản này.

Tính toán vay mua

70,000
/
Hàng tháng
  • Gốc & Lãi
  • Thuế tài sản
  • Bảo hiểm nhà